Small Studio for Drawing, Painting, and Sculpture

This small studio for drawing, painting, and sculpture acts as a visual device itself by bi-directionally framing its surroundings. To the southeast, a great amount of daylight enters through tilted glazing. To block direct sun, if desired, and to enable the modulation of light and climatic conditions, exterior screens are deployed. To the northwest, a system of frames is installed that enable bronze sculptures to be suspended in front of the glass and in direct sight of the working artist. In that spot, the bronze sculptures receive their natural patina while being staged as a motive of reflection and confrontation for the artist. The building features two separate levels, which serve different functions. The upper level is designed to be a workplace where most of the sketches and small watercolors are done, while on the lower level, medium-sized canvases and small sculptures will be produced. The semi-industrial character of the project stems from the reference to the typology of the shed roof factory. Here, this typology is being reduced to its simplest case — a single box with a single skylight. The use of raw and untreated materials contributes to the character of a workshop. The façade panels are made …

[ccw-atrib-link]

Hillside House / TOOB STUDIO

Architects:
Location: , Hoà Bình, Vietnam
Architect In Charge: Nguyễn Hồng Quang
Area: 120.0 sqm
Year: 2014

From the architect. Hillside House project is located among an area of about 1000sqm which is a part of a resort beside Bùi brook, Hòa Bình; that takes 55km from Hà Nội to the west. This place is where Mường ethnic people habit.

The murmur all year of Bùi brook along the 45 degree sloped hillside is considered to be the most marvellous scene of the area. However, there was a limitation in construction here. So, this was a tough challenge for the architect in planning overall traffic.

The owner of house works in construction field, and he desires a place not only for his whole family to relax during weekends but also a house that friendly to the nature, suitable to the native architecture, saving energy and low cost.

From all above elements, the architects design “Hillside House” which is inspired of Mường ethic traditional house on stilts. Constructed materials are mostly from nearby area like quarry stone, bamboo, palm leaves, etc…combines with specific Vietnamese northern materials such as slate stone, yellow laterite. Structure of the house is made by steel frame, which is quickly constructed, light and durable. Construction workers mostly are Mường people, that’s why the architects try to give a simple but useful solution.

There are a ground floor and an attic. The ground floor is about 70sqmarea which includes living-dining-kitchen space, one standard bathroom. The 1st floor is 1,2m higher than the ground land around so that people could have the best view of the scene, and to stay away from insects.

Moreover, the atmospheric convection creates comfortable atmosphere, reduces endosmosis from the ground. Surrounding pool is an interesting highlight, it makes the air cooler before flowing through the house. The cover solution is the bamboo curtain system. Each time the curtains are rolled up, the scenery can be enjoyed through the I shaped steel column system, and the bamboo curtains accidently become a romantic nature picture frame.

The second floor is 50sqm area includes multipurpose space and bedroom, covered by glass not to limit the view. The roof is made of bamboo resigned frame and covered with 50cm thick palm leaves to make it cool inside the house even if during the hottest day of summer.

The construction of the house and the landscape of green are done at the same time. In which there are varieties type of plant such as big tree, fruit tree, and vegetables…

Irrigation and clean water is supplied enough from the underground water stream and rain water which was filtered by natural materials, so tap-water is no longer required.

[ccw-atrib-link]

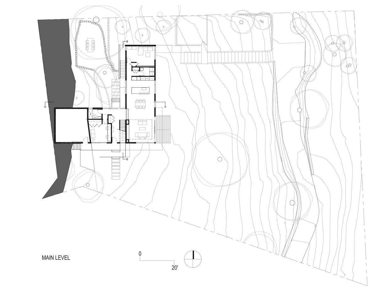
Unforgettable-House in Pohang / Studio GAON

Architects: Studio GAON
Location: Imjung-ri, Janggi-myeon, Nam-gu, , Gyeongsangbuk-do, South Korea
Architects In Charge: Hyoungnam Lim, Eunjoo Roh in studio GAON
Area: 198.0 sqm
Year: 2014
Photographs: Young-chae Park, Courtesy of Studio GAON

Project Team: Seongwon Son, Minjung Choi, Sangwoo Yi, Sungpil Lee, Hanmoe Lee, Joowon Moon
Construction: Starsis (Inil Hhang, Jonguk Ahn)

From the architect. This project is a ‘House within a house’, which is built in a 20-year-old warehouse. A year ago in October, a young couple in their late 20s, visited our studio to build their house to live after their wedding. They were the youngest clients who required our design.

The couple was about to get married next year (2014), and they were thinking of renovating the concrete warehouse in the bride’s hometown as their new house. They said they want to fix it and take it as the starting point of their new life.

Her hometown was a small town next to East Sea, between Pohang and Gampo, which is 380km far from Seoul. Listening to their story, we could foresee the difficulties of the project and trying to come up with excuses to refuse politely. But when we saw the photographs of the old concrete warehouse standing inside the rice paddy and field, like a magic, it was like hearing the sound of a Pied Piper.  We already answered that we’ll take the project.

The warehouse was built 20 years ago by the bride’s father. He bought some property to start a new business in his hometown, and the very warehouse was an animal feed factory for a chicken farm. To let some big machineries in, the height became 5 meters high with a reinforced concrete structure, and exterior was finished with mortar on cement blocks.

Her father had been planning to build a two story house beside the warehouse when the business became stable. By bad fortune, after a year, her father passed away on a rainy day in a car accident. The business halted too soon and the building became farming tools storage for neighbors. Meanwhile, the warehouse became old with small and big holes in the wall. If it rained, water stayed on the rooftop and ran down inside.

Most of the young people in Korea start their newly-married life in an apartment, whether it is small or big. Considering economic value, or for convenience sake, it was a very special plan to make an inherited old warehouse to their new marriage home. Many people said that they were burning their money into the air if they invested on the old warehouse, instead of buying or renting an apartment. But the couple said to the people who were dissuading them that they don’t need to worry because they are going to live in the house for their entire life.

Listening to their both wise and reckless thought, we felt burdened. The project to blow warmth into a warehouse with large blank was a task; it was like putting solid color into a black-and-white photograph and make it high-definition natural color picture, to make a strong cover for the young couple as a background for life.

The budget was prepared to cover about one third of the whole area. We started from the concept of inserting a house within a house, to provide enough area as they needed. There was enough height for two floors, so we put a kitchen, dining, living room and a small hidden on the first floor, and put family room, bathroom, dress room, and bedroom on the second floor. They decided to fill the remaining space portion by portion as they live.

The admirable young couple got married on 4th of October, which is a year after we met them. By the courageous constructor’s favor who decided to work despite the far distance from Seoul, the house was finished according to plan.

The house within the house was built in steel structure. Wall in the common space was finished with plywood and lightings were designed to accentuate the warmth of wood, and other spaces were finished by white paint to induce calm atmosphere. Floor was finished with white tile to make a gorgeous and bright space.

Since the budget was scarce, there was no spare to fix the rough concrete exterior wall. We promised to draw a mural ourselves. We got the design idea from the bar code. Each of the codes becomes a tree and the trees become a forest. So that the information read by the bar code represents the love of the family.

All members of our firm went in a car to the site to draw the mural for an overnight schedule. It was the first time for us to draw a mural, so it wasn’t an easy task. But all staff enjoyed the pleasure of labor by drawing lines and rough sketches and coloring it. On the wall that reaches the rooftop, which has an outside stairs on it, we drew some drawings to represent the warmth of house and family. Drawing of Sugeun Park, who’s the famous painter of Korea, became the model of our drawings.

The towering warehouse surrounded by rice paddy and field was finally reformed in 20 years into a storage to put people as well as the young couple’s love and living inside.

It’s just like Natalie Cole singing the song ‘Unforgettable’, which was sung by her father Nat King Cole, after several decades her father passed away. The daughter put the two story house inside the warehouse, not unlike a snail’s shell made by her father. So the life and house continues again, and we decided to call this house ‘Unforgettable’.

Unforgettable-House in Pohang / Studio GAON © Young-chae Park
Unforgettable-House in Pohang / Studio GAON © Young-chae Park
Unforgettable-House in Pohang / Studio GAON © Young-chae Park
Unforgettable-House in Pohang / Studio GAON © Young-chae Park
Unforgettable-House in Pohang / Studio GAON © Young-chae Park
Unforgettable-House in Pohang / Studio GAON © Young-chae Park
Unforgettable-House in Pohang / Studio GAON © Young-chae Park
Unforgettable-House in Pohang / Studio GAON Before. Image Courtesy of Studio GAON
Unforgettable-House in Pohang / Studio GAON Before. Image Courtesy of Studio GAON
Unforgettable-House in Pohang / Studio GAON Before. Image Courtesy of Studio GAON
Unforgettable-House in Pohang / Studio GAON © Young-chae Park
Unforgettable-House in Pohang / Studio GAON © Young-chae Park
Unforgettable-House in Pohang / Studio GAON © Young-chae Park
Unforgettable-House in Pohang / Studio GAON © Young-chae Park
Unforgettable-House in Pohang / Studio GAON © Young-chae Park
Unforgettable-House in Pohang / Studio GAON © Young-chae Park
Unforgettable-House in Pohang / Studio GAON © Young-chae Park
Unforgettable-House in Pohang / Studio GAON © Young-chae Park
Unforgettable-House in Pohang / Studio GAON © Young-chae Park
Unforgettable-House in Pohang / Studio GAON © Young-chae Park
Unforgettable-House in Pohang / Studio GAON © Young-chae Park
Unforgettable-House in Pohang / Studio GAON © Young-chae Park
Unforgettable-House in Pohang / Studio GAON © Young-chae Park
Unforgettable-House in Pohang / Studio GAON © Young-chae Park
Unforgettable-House in Pohang / Studio GAON © Young-chae Park
Unforgettable-House in Pohang / Studio GAON © Young-chae Park
Unforgettable-House in Pohang / Studio GAON © Young-chae Park
Unforgettable-House in Pohang / Studio GAON © Young-chae Park
Unforgettable-House in Pohang / Studio GAON © Young-chae Park
Unforgettable-House in Pohang / Studio GAON © Young-chae Park
Unforgettable-House in Pohang / Studio GAON © Young-chae Park
Unforgettable-House in Pohang / Studio GAON © Young-chae Park
Unforgettable-House in Pohang / Studio GAON © Young-chae Park
Unforgettable-House in Pohang / Studio GAON © Young-chae Park
Unforgettable-House in Pohang / Studio GAON © Young-chae Park
Unforgettable-House in Pohang / Studio GAON © Young-chae Park
Unforgettable-House in Pohang / Studio GAON © Young-chae Park
Unforgettable-House in Pohang / Studio GAON © Young-chae Park
Unforgettable-House in Pohang / Studio GAON © Young-chae Park
Unforgettable-House in Pohang / Studio GAON © Young-chae Park
Unforgettable-House in Pohang / Studio GAON © Young-chae Park
Unforgettable-House in Pohang / Studio GAON First Floor Plan
Unforgettable-House in Pohang / Studio GAON Second Floor Plan
Unforgettable-House in Pohang / Studio GAON North Elevation
Unforgettable-House in Pohang / Studio GAON South Elevation
Unforgettable-House in Pohang / Studio GAON East Elevation
Unforgettable-House in Pohang / Studio GAON West Elevation
Unforgettable-House in Pohang / Studio GAON Longitudinal Section 1
Unforgettable-House in Pohang / Studio GAON Longitudinal Section 2
Unforgettable-House in Pohang / Studio GAON Cross Section 1
Unforgettable-House in Pohang / Studio GAON Cross Section 2
Unforgettable-House in Pohang / Studio GAON Diagram
Unforgettable-House in Pohang / Studio GAON Drawing

[ccw-atrib-link]

San Anselmo House by Shands Studio

Shands Studio have designed the San Anselmo House in Marin County, California.

sa_240914_02

sa_240914_03

sa_240914_04

sa_240914_06

sa_240914_07

sa_240914_08

sa_240914_10

sa_240914_12

sa_240914_13

Project description

Envisioned for direct access to the outdoors and visual connection to the surrounding landscape, this 2,450 sq. ft. house was designed as two perpendicular volumes stepping down the hill. The expansive windows and sliding glass doors allow for the exterior patio and cantilevered deck to be an extension of the living spaces. The Upper Level cantilevers over the Lower Level on the South side utilizing passive heating and cooling strategies. The Upper Level was also designed with an inverted hip roof to maximize exposure for solar panels while visually concealing them from the street.

sa_240914_01
sa_240914_02
sa_240914_03
sa_240914_04
sa_240914_05
sa_240914_06
sa_240914_07
sa_240914_08
sa_240914_09
sa_240914_10
sa_240914_11
sa_240914_12
sa_240914_13
sa_240914_14
sa_240914_15

Design: Shands Studio

Photography by Paul Dyer

[ccw-atrib-link]

ABC Cooking Studio / Prism Design

Architects: Prism Design
Location: Huangpu, ,
Architects In Charge: Tomohiro Katsuki, Masanori Kobayashi, Reiji Kobayashi
Area: 160 sqm
Year: 2014
Photographs: Studio W – Wataru Ishida

Construction: Shanghai Zhangfa Construction Installation Engineering Co,.Ltd
Lighting Supplier: Koizumi Lighting Technology(Shanghai Co. Ltd.)

From the architect. ABC Cooking Studio is a place where people come to cook an array of foods, including baking breads and cakes.

Unlike other cooking schools, ABC Cooking Studio promotes a more casual and friendly environment where people can enjoy while learning how to cook delicious and sophisticated food.

1.There are 124 studios currently operating in Japan, and as a member, you will be allowed to take classes at any studio of your choice

2.The classes are done in a small group, ensuring you maximum support from the teachers

3.Lessons are held multiple times a day, and you can easily reserve the classes through your computer or cell phone

4.You can register for classes based on the teacher and/or menu of your liking ABC’s original recipe sheets are very easy to understand, and can be used for extra support

5.You can review the recipes that you used online, allowing you to recreate your favorite dishes

ABC Cooking Studio / Prism Design © Studio W – Wataru Ishida
ABC Cooking Studio / Prism Design © Studio W – Wataru Ishida
ABC Cooking Studio / Prism Design © Studio W – Wataru Ishida
ABC Cooking Studio / Prism Design © Studio W – Wataru Ishida
ABC Cooking Studio / Prism Design © Studio W – Wataru Ishida
ABC Cooking Studio / Prism Design © Studio W – Wataru Ishida
ABC Cooking Studio / Prism Design © Studio W – Wataru Ishida
ABC Cooking Studio / Prism Design © Studio W – Wataru Ishida
ABC Cooking Studio / Prism Design © Studio W – Wataru Ishida
ABC Cooking Studio / Prism Design © Studio W – Wataru Ishida
ABC Cooking Studio / Prism Design © Studio W – Wataru Ishida
ABC Cooking Studio / Prism Design © Studio W – Wataru Ishida

[ccw-atrib-link]

Studio Gang’s “Solar Carve” Tower Moving Forward

  Studio Gang’s first New York City tower appears to be moving forward, albeit a little shorter than originally envisioned. Initial plans called for a 213-foot tall, 180,000-square-foot office tower—known as the “Solar Carve”—that would have been 34% larger than what is currently allowed on the site. After it became clear that wasn’t going to […]

[ccw-atrib-link]

Cocoon House / Studio Aula

Architects: Studio Aula
Location: , Nagano, Japan
Architect In Charge: Mitsuru Yoshida,Kyoko Hoshina
Year: 2013
Photographs: Ippei Shinzawa

From the architect. Our client is a family with a couple in fifties, their two children and mother. In Cocoon house our mission was making-over in which the premise is narrow at the approach and deep inside. We try to functionally make use of it with its old garden. For instance, on the north side facing to a road we laid storage and space to take in light and winds.

The vertical bar screen in Japanese style blocks others’ eye and a fine devise to hold such functions. Also we put a multipurpose earth floor to make an entrance as well from the north to the south garden. This assures the functional elements such as a corridor and a storage space, also becomes a public space to combine inside with outside and to get visitors. The inside materials of construction are flamed in squares as iconic form, and the layer with the chequer patterns reminding of the thread of cocoon managed to generate the diversity of forms. We have also done the makeover of the garden. The old one was conventionally symbolic with chunks of stone work allegedly representing a ship on the sea. but we redefined it to satisfy the quality of life converting with the steppingstones led from the earth floor. Although industrialized houses are spreading over in the neighbourhood we have aimed integration of the old and the new in Japanese symbolic landscape.

Built in a unifom neighbourhood, this house aims at utilizing a garden with an old pine tree and the stone work and caring for the Japanese way of life and traditional forms; the earth flooor corridor  works in some functional ways; the bar screen taking in light and wind under the large roof protects privacy; the bamboo fence encourages simplified maintanance on the owener’s own.

They used to live in an old house in a hamlet with depopulation in the Kiso region. It was a sericultural farm house built with wood, paper, and mortar in the Meiji period (about a hundred years old). Also Kiso is surrounded by conifer forests and clear water in a mountain range which is quite filled with natural beauty in Japan. The client loved the house and the neighbourhood, but an accidental mischief occured and it determined moving to a newly purchaseed secondhand house with a lovely old garden in adjacent suburbia.

After all this house turned out to be poorly earthquake-proof which leads to demolition and rebuilding. Our goal in this project is to capture Japanese style in order to confort the client family.

We managed to make use of much wood for the interior and the beam construction and to care for their remembrance of the old house and the locality. Actually they own a mountain forest in the hamlet and we used the Hinoki (Japanese cypress) timber planted in their son’s birth for a part of constructual materials.

Cocoon House / Studio Aula © Ippei Shinzawa
Cocoon House / Studio Aula © Ippei Shinzawa
Cocoon House / Studio Aula © Ippei Shinzawa
Cocoon House / Studio Aula © Ippei Shinzawa
Cocoon House / Studio Aula © Ippei Shinzawa
Cocoon House / Studio Aula © Ippei Shinzawa
Cocoon House / Studio Aula © Ippei Shinzawa
Cocoon House / Studio Aula © Ippei Shinzawa
Cocoon House / Studio Aula © Ippei Shinzawa
Cocoon House / Studio Aula © Ippei Shinzawa
Cocoon House / Studio Aula © Ippei Shinzawa
Cocoon House / Studio Aula © Ippei Shinzawa
Cocoon House / Studio Aula © Ippei Shinzawa
Cocoon House / Studio Aula © Ippei Shinzawa
Cocoon House / Studio Aula © Ippei Shinzawa
Cocoon House / Studio Aula © Ippei Shinzawa
Cocoon House / Studio Aula © Ippei Shinzawa
Cocoon House / Studio Aula © Ippei Shinzawa
Cocoon House / Studio Aula © Ippei Shinzawa
Cocoon House / Studio Aula Floor Plan
Cocoon House / Studio Aula Floor Plan
Cocoon House / Studio Aula Elevation
Cocoon House / Studio Aula Site Plan

[ccw-atrib-link]

Logan STUDIO JOINER Logan Framing Tool Hardware

Produce perfect joined corners with this all purpose picture framing joiner designed for light duty framing. Drives single v-nail, one at a time, into hard and soft woods. Economical and extremely practical. Joins frames simply and accurately. Features include:Magnetic nail holderQuick depth setting adjustment Drives all V-nail sizesIncludes support spacer for irregular shape profilesUse on hard or soft woodsIncludes quick-adjust corner clamp Use on mouldings up to 2.5″ wideReinforced baseboard. Steel post sleeves prevent flexing. Easier to use knobsTwo adjustable height levelers for joining long mouldingsAnti-slip pad protects moulding faceComes with 100 1/4″ and 100 3/8″ soft v-nails

Product Features

  • Join wood frame moulding like a professional with the Logan F300-1 Studio Joiner
  • Makes a perfect and permanent joint, just like you would get from a frame shop
  • Includes 200 FREE V-nails
  • Made in USA
  • Includes 1 year manufacturers warranty

[ccw-atrib-link]